 
			 
				 
	 
		CASTIGLIONE DELLE STIVIERE
Se sei alla ricerca di una casa spaziosa, confortevole e ben posizionata, questa villa a schiera centrale, situata nella rinomata zona Fontane di Castiglione delle Stiviere, potrebbe essere la soluzione perfetta per te. Questa proprietà risale ai primi anni 2000 ed è stata costruita con cura, offrendo un ambiente ideale per famiglie e chi cerca tranquillità e comodità.
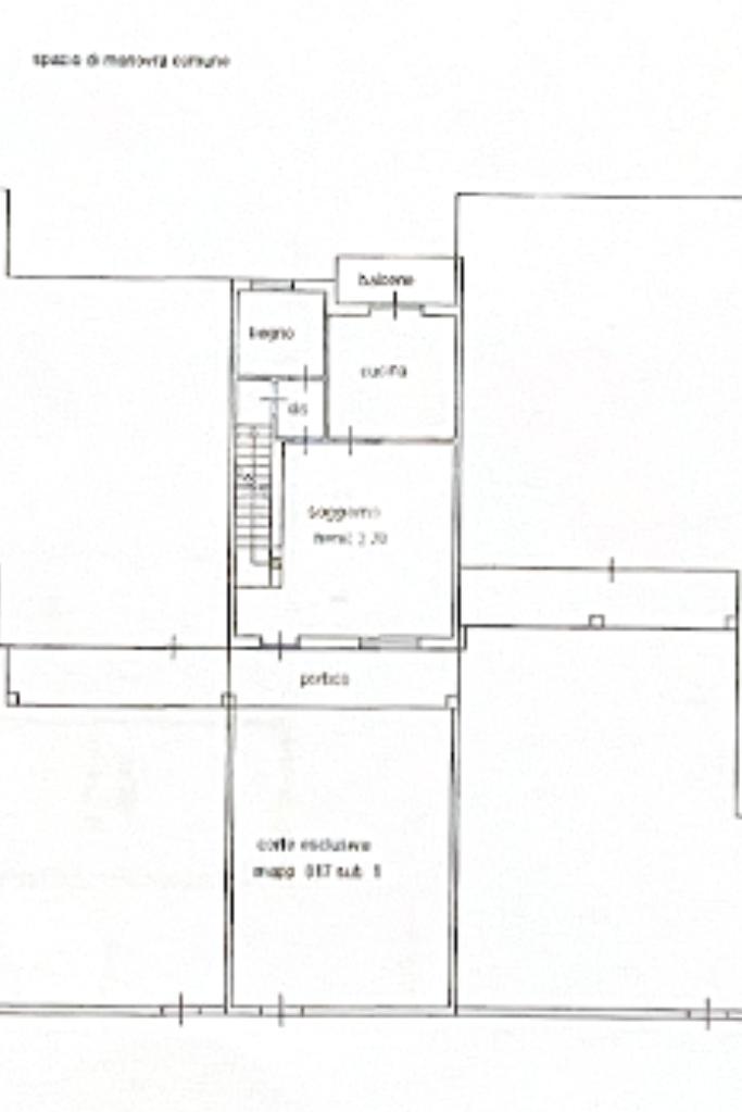
L'abitazione si sviluppa su due livelli principali, più un seminterrato che arricchisce ulteriormente lo spazio.
Al piano terra, la zona giorno accoglie un ampia zona relax con divano e tv, e uno spazio per un comodo tavolo da pranzo, perfetto per cene in famiglia o con amici. La cucina separata e abitabile è dotata di un balcone esterno, che regala luce naturale e un angolo di relax all'aria aperta. Completa il piano terra un comodo bagno con box doccia, ideale per gli ospiti o per una rapida pausa.
Al piano superiore, la zona notte si compone di una spaziosa camera matrimoniale con balcone privato, da cui si può godere di una vista tranquilla sulla zona circostante. Troviamo poi una seconda camera doppia, una camera singola, ideale per i bambini o come studio, e un secondo bagno dotato di vasca, perfetto per momenti di relax.
Il seminterrato è un'ulteriore area funzionale che amplia la vivibilità della casa. Qui si trova una grande zona lavanderia, una piccola taverna attualmente adibita a palestra, una cantina per i vini e un garage singolo che garantisce praticità e sicurezza per il tuo veicolo.
Completa questa splendida villa a schiera un portico esterno, perfetto per pranzi all'aperto o momenti di relax nel giardino privato della proprietà. L'ampio spazio esterno offre un angolo tranquillo per godersi le belle giornate, magari leggendo un libro o semplicemente rilassandosi.
La posizione della villa a schiera è ideale: la zona Fontane è una delle più belle e ricercate di Castiglione delle Stiviere, caratterizzata dalla sua tranquillità, la vicinanza a tutte le comodità e l'ottima qualità della vita. Non perdere l'opportunità di visitare questa casa che combina comfort, eleganza e una posizione privilegiata!
 Immobile valutato con T·Valuta
Immobile valutato con T·Valuta
								Ti interessa visionare l'immobile?